You are in: Home > Places > M. Paul Dare, The Church of S. John the Evangelist, Carlton-in-Lindrick: A guide for Visitors (1936)
< Previous | Next >
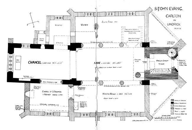
Download a printable PDF version of the church plan.